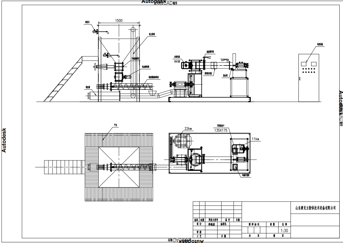
碳酸氢钠研磨机
采用德国技术,高精度机械粉碎机,碳酸氢钙脱硫专用,适用325目-5000目(45um-2.5um)。设计简单耐用,与其它烟气净化方式相比,投资和运营成本均较低。可以在
低温的情况下,高效率粉碎碳酸氢钠(小苏打, NaHCO3)。广泛应用于烟气干法净化领域,在市政垃圾处理、有毒废物处理、生物燃料、电厂、水泥厂、陶瓷行业、非金
属行业、玻璃制造行业、钢厂等的垃圾焚烧、危废焚烧、污泥焚烧、各类焦炉等工业的废气中,都含有酸性物质的气体,如SO2,HCl等,用小苏打(碳酸氢钠)脱酸会达到
环保方面苛刻的要求,成本还很低,应用越来越广。
小苏打研(碳酸氢钠)磨机工作原理
碳酸氢钠(小苏打)原料经由料仓下部的定量加料机均匀送入粉碎机进行超细研磨,达到颗粒细度的产品(D90:20μm或根据脱酸需要灵活调整产品粒度)被高压风机输送到烟
气管道并喷射融入烟气,迅速与含酸烟气产生化学反应。在高温下碳酸氢钠分解生成碳酸钠Na2CO3、H2O和CO2。新生成的碳酸钠Na2CO3在生成瞬间有很高的反应活
性,可高效地与烟气中的酸性物质进行反应。



管理员
该内容暂无评论